• Одно- или трехфазный асинхронный двигатель с вперед загнутыми лопатками;
• Варианты исполнения мотор-колес: «Стандарт»;
• Два варианта корпуса:
- оцинкованная сталь;
- шумоизолированный корпус из оцинкованной стали и звукопоглощающего наполнителя;
• Рабочее напряжение: однофазные – 1~230В; трехфазные – 1~400В;
• Класс изоляции корпуса: IP54;
• Монтаж: уголок шина.
Вентилятор канальный прямоугольный ВКП-Ш №100-50 производится по ТУ 4861-019-15185548-04.
Канальный вентилятор ВКП-Ш №100-50 используется в составе канальных систем вентиляции с прямоугольным сечением воздуховодов размером 100х50 см. Корпус двойной из оцинкованной стали заполненный звукопоглощающим материалом на основе минеральной ваты толщиной не менее 5 см , установлен однофазный 220В или трехфазный 380В двигатель с вперед загнутыми лопатками . Производительность вентилятора ВКП-Ш 100-50 по воздуху составляет 8200 м³/ч., предельная температура перемещаемой рабочей среды до +60°С.
Технические характеристики Канальные вентиляторы ВКП-Ш №100-50
| Марка вентиля-тора | Напря-жение, В/ частота, Гц | Фаз-ность | Потребля-емая мощ-ность, Вт | Ток, А | Макс. расход воздуха, м3/ч | Частота вращ-ения, об/мин | Макс. темпе-ратура переме-щаемого воздуха, °С | Уровень звукового давления на расст. 3 м, дБ(А) | Класс защиты двига-теля | Ёмкость конден-сатора, мкФ | Тип термо-защиты | Масса, кг | Электри-ческая схема подклю-чения |
| ВКП-Ш 100-50-6D | 400/50 | 3 | 3500 | 6 | 8200 | 930 | 40 | 60 | IP54 | - | Встра-иваемое биметал-лическое термореле | 85 | В |
| ВКП-Ш 100-50-8D | 400/50 | 3 | 2000 | 4,1 | 7000 | 680 | 40 | 52 | IP54 | - | 85 | В |
Аэродинамические характеристики канального вентилятора ВКП-Ш 100-50
.jpg)
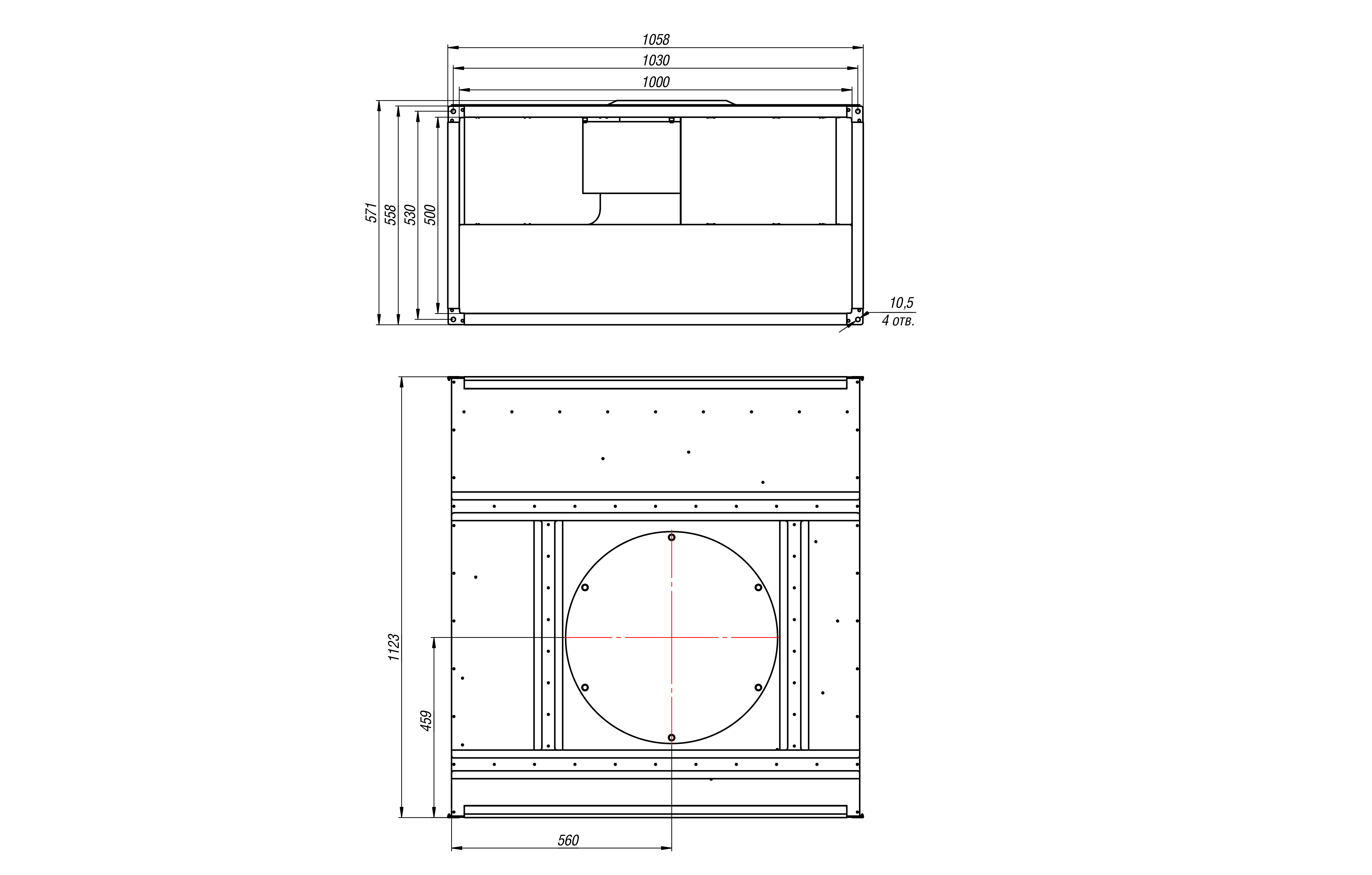
Габаритные и присоединительные размеры канального вентилятора ВКП-Ш 100-50
.png)
Акустические характеристики канального вентилятора ВКП-Ш 100-50
|
Значение Lpi в октавных полосах f, Гц |
||||||||||
| Марка вентилятора |
Частота вращения, об/мин |
Lpa, дБА | 63 | 125 | 250 | 500 | 1000 | 2000 | 4000 | 8000 |
|
ВКП-Ш 100-50-6D |
Lwa Канал |
75 | 68 | 73 | 71 | 72 | 70 | 68 | 62 | 59 |
| Lwa к выходу | 84 | 69 | 72 | 72 | 78 | 79 | 77 | 74 | 69 | |
|
Lwa к окружению |
67 | 53 | 62 | 61 | 61 | 63 | 61 | 56 | 54 | |
Технические характеристики канальных вентиляторов ВКП-Ш
Канальные вентиляторы ВКП-Ш прямоугольные, одностороннего всасывания предназначены для работы в составе канальных систем вентиляции и служат для генерации приточного или вытяжного воздушного потока. Вентиляторы данного типа устанавливаются непосредственно в сечение воздуховодов и не занимают много места.
Канальные прямоугольные вентиляторы ВКП-Ш устанавливаются в:
• Кафе, ресторанах и столовых;
• Офисных и торговых центрах;
• Складских и производственных помещениях;
• Магазинах и супермаркетах;
• Кинотеатрах и развлекательных центрах;
• Гаражах и автостоянках.
Рабочая среда для вентиляторов прямоугольных ВКП-Ш:
• Содержание пыли и твердых частиц не более 0,1 г/м3;
• Отсутствие липких и химически активных веществ;
• Относительная влажность до 80%;
• +60°С – максимальная температура перемещаемого воздуха;
Канальные вентиляторы серии ВКП-Ш устанавливаются в разрыв прямоугольных воздуховодов в систему вентиляции, под любым углом. Крепление вентилятора к воздуховоду осуществляется за счет шинорейки. Вентилятор имеет двойной корпус из оцинкованной стали заполненный звукопоглощающим материалом на основе минеральной ваты толщиной не менее 5 см
В заводскую комплектацию вентилятора ВКП-Ш входит:
• Оцинкованный корпус;
• Рабочее колесо центробежного типа;
• Двигатель с внешним ротором, одно или трех фазный;
• Монтажный уголок (шина монтажная);
• Технический паспорт вентилятора с отметкой ОТК.
Варианты изготовления канальных вентиляторов:
- Вентилятор канальный прямоугольный ВКП;
- Вентилятор канальный марки ВКП-Б;
- Вентилятор канальный в шумоизолированном корпусе марки ВКП-Ш;
- Вентилятор канальный с вынесенным электродвигателем на корпус марки ВКПН;
- Вентилятор канальный кухонный с вынесенным электродвигателем марки ВКПН-КХ.
Условное обозначение канальных вентиляторов серии ВКП-Ш (пример):

Дополнительно к вентилятору можно заказать:
• Клапан прямоугольный;
• Воздушный фильтр;
• Шумоглушитель прямоугольный;
• Регулятор скорости оборотов рабочего колеса.
Монтаж и подключение вентилятора ВКП-Ш*:
На входе и выходе вентилятора должны быть расположены прямые участки воздуховода. Минимальная длина прямоугольных участков воздуховода, следующая: со стороны всасывания один диаметр воздуховода и три диаметра со стороны нагнетания. На данных секциях не допускается установка шумоглушителей, фильтров, нагревателей и прочих устройств.

⚠ Запрещается использовать вентилятор при отсутствии пускозащитных устройств (ПЗУ), либо их несоответствии номинальному току обмотки электродвигателя.
*Более подробная информация о правилах монтажа, пуска, эксплуатации, обслуживания и технических характеристиках радиального вентилятора ВКП-Ш отражена в техническом паспорте изделия, который поставляется в комплекте с агрегатом.
Электрическая схема подключения вентилятора ВКП-Ш:

Условия эксплуатации вентилятора ВКП-Ш
Вентиляторы канальные прямоугольные серии ВКП-Ш рассчитаны на долговременную бесперебойную работу в регионах с умеренным климатом («У» по ГОСТ 15150) по 2-й категории размещения.
Температура окружающей среды:
• от -40° до +40°С для вентиляторов исполнения У (умеренный климат);
Оплата производится по Безналичному расчету.
Для более подробной информации, свяжитесь с менеджером 8-800-770-75-30 или задайте вопрос в онлайн чат.
1. Можем доставить ваш заказ собственными ресурсами.
2. Самовывоз со склада. Для получения заказа обратитесь к сотруднику в зоне выдачи и назовите номер.